Dornas (07160) Grande maison avec gîte, piscine chauffée et vue panoramique.
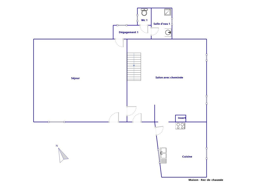
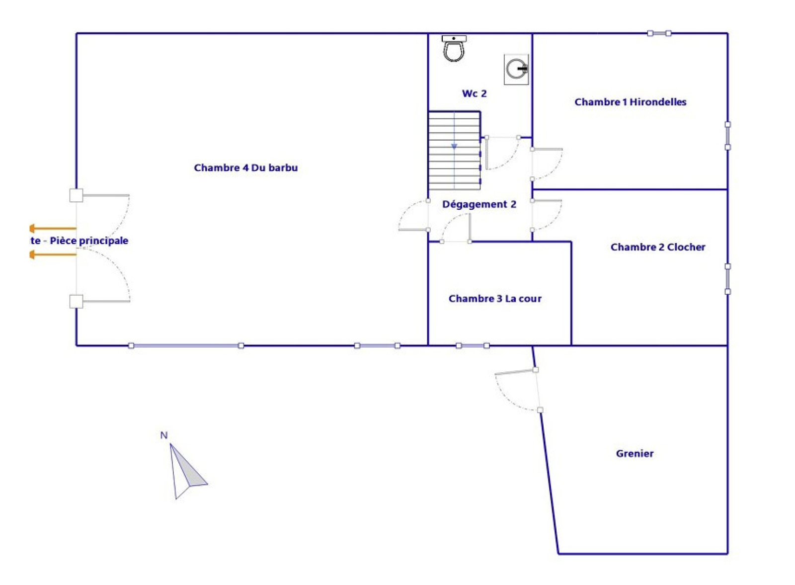
EXCLUSIVITÉ - Ardèche - 20 mn Le Cheylard. Grande maison de pays indépendante en pierres Piscine chauffée et vue panoramique. 200 m² env. dont un gîte avec terrasse de 33 m² env. (Travaux d'améliorations à prévoir pour confort à l'année) Pièce de vie de 40 m² env. Salon avec cheminée. Cuisine aménagée. 5 chambres dont une de 43 m² env. avec baignoire. 2 salles d'eau, 1 baignoire, cabinet de toilette, 3 wc. Caves, petit hangar et parking privé. Chauffage poêle à bois. Assainissement individuel. CLASSE ÉNERGIE : F CLASSE CLIMAT C. Logement à consommation énergétique excessive Montant estimé des dépenses annuelles d'énergie pour un usage standard selon les prix moyens indexés ur les années 2021 à 2023 : 3160 à 4320 €. Réf 4924 Prix : 295 000 € (honoraires charge vendeur). Votre contact FOROT Immobilier : Thierry GIRARD au 04 75 06 40 02. Les informations sur les risques auxquels ce bien est exposé sont disponibles sur le site Géorisques : www.georisques.gouv.fr
Logement à consommation énergétique excessive : classe F
Montant estimé des dépenses annuelles d'énergie pour un usage standard est compris entre 3 150 € et 4 330 € . Prix moyens des énergies indexés sur les années 2021, 2022 et 2023 (abonnements compris).
-
Commerces et santé
-
Loisirs
-
Ecoles
-
Transports
-
Pratique
Les informations recueillies sur ce formulaire sont enregistrées dans un fichier informatisé par La Boite Immo agissant comme Sous-traitant du traitement pour la gestion de la clientèle/prospects de l'Agence / du Réseau qui reste Responsable du Traitement de vos Données personnelles.
La base légale du traitement repose sur l'intérêt légitime de l'Agence / du Réseau.
Elles sont conservées jusqu'à demande de suppression et sont destinées à l'Agence / au Réseau.
Conformément à la loi « informatique et libertés », vous disposez des droits d’accès, de rectification, d’effacement, d’opposition, de limitation et de portabilité de vos données. Vous pouvez retirer votre consentement à tout moment en contactant directement l’Agence / Le Réseau.
Consultez le site https://cnil.fr/fr pour plus d’informations sur vos droits.
Si vous estimez, après avoir contacté l'Agence / le Réseau, que vos droits « Informatique et Libertés » ne sont pas respectés, vous pouvez adresser une réclamation à la CNIL.
Nous vous informons de l’existence de la liste d'opposition au démarchage téléphonique « Bloctel », sur laquelle vous pouvez vous inscrire ici : https://www.bloctel.gouv.fr
Dans le cadre de la protection des Données personnelles, nous vous invitons à ne pas inscrire de Données sensibles dans le champ de saisie libre.
Ce site est protégé par reCAPTCHA, les Politiques de Confidentialité et les Conditions d'Utilisation de Google s'appliquent.
Détails des diagnostics énergétiques
Logement à consommation énergétique excessive : classe F
Montant estimé des dépenses annuelles d'énergie pour un usage standard est compris entre 3 150 € et 4 330 € . Prix moyens des énergies indexés sur les années 2021, 2022 et 2023 (abonnements compris).
